
| Артикул | 4M701 |
| Количество этажей: | 2 |
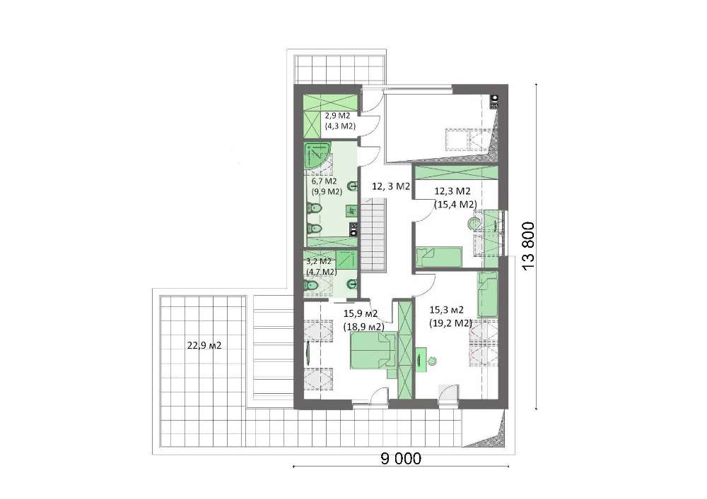
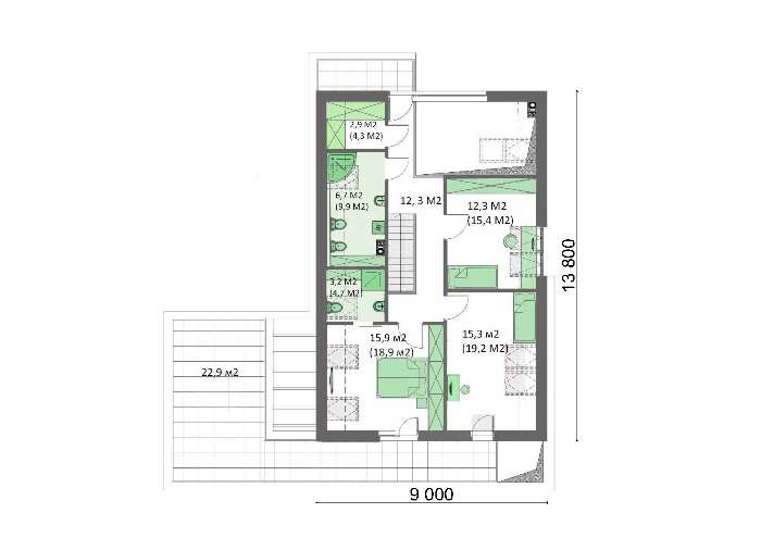
| Общая площадь: | 285.64 м2 |
| Жилая площадь: | 175.73 м2 |
| Высота дома: | 8.20 м |
| Высота потолка: | 2.80 м |
| Угол наклона кровли: | 35 ° |
| Площадь крыши: | 188.00 м2 |
| Кубатура: | 960.00 м3 |
| Количество спален: | 3 |
| Количество санузлов: | 3 |
| Гараж: | Гараж на одно авто |
| Минимальный размер участка(длина): | 20.00 м |
| Минимальный размер участка(ширина): | 22.00 м |
| Площадь застройки: | 146.13 м2 |
Материалы: | |
| Стены: | газобетон, керамические блоки |
| Перекрытие: | монолитное перекрытие |
| Кровля: | фальц |
| Фундамент: | монолитная лента |
| Артикул | 4M701 |
| Количество этажей: | 2 |
| Общая площадь: | 285.64 м2 |
| Жилая площадь: | 175.73 м2 |
| Высота дома: | 8.20 м |
| Высота потолка: | 2.80 м |
| Угол наклона кровли: | 35 ° |
| Площадь крыши: | 188.00 м2 |
| Кубатура: | 960.00 м3 |
| Количество спален: | 3 |
| Количество санузлов: | 3 |
| Гараж: | Гараж на одно авто |
| Минимальный размер участка(длина): | 20.00 м |
| Минимальный размер участка(ширина): | 22.00 м |
| Площадь застройки: | 146.13 м2 |
Материалы: | |
| Стены: | газобетон, керамические блоки |
| Перекрытие: | монолитное перекрытие |
| Кровля: | фальц |
| Фундамент: | монолитная лента |
Приобретая проект дома в компании Dom4M, Вы получаете комплект чертежей - 2 экземпляра, необходимый для проведения строительных работ и беспрепятственного получения разрешения на строительство.
Проект содержит три раздела – Архитектурный, Конструктивный и Инженерный (Водоснабжение, Отопление, Вентиляция, Канализация, Электроснабжение) + Пояснительная записка
1. Архитектурный раздел:
2. Конструктивный раздел:
3. Инженерный раздел:
Водоснабжение и канализация
Отопление, вентиляция
Электротехнические решения:
Проект является типовым и не учитывает конкретных условий строительства
Срок изготовления проекта дома составляет от 3 до 30 рабочих дней.
Объем проектной документации – от 50 до 100 страниц А4 и А3, в зависимости от сложности проекта
Наша команда Архитекторов, Конструкторов и Инженеров – всегда готовы воплотить Вашу мечту в реальность!
Мы можем вносить любые изменения в проект по Вашему пожеланию и адаптировать его с учетом конкретных геолого-топографических и климатических условий, за дополнительную плату.
Всегда рады Вам помочь!