
| Артикул | 4M707 | 
| Количество этажей: | 2 | 
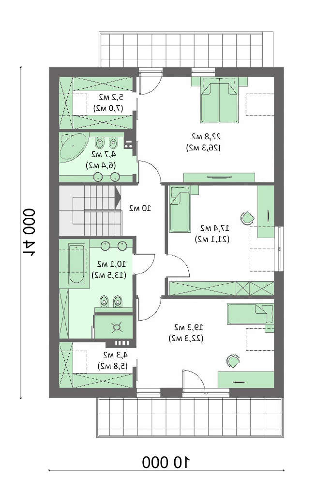
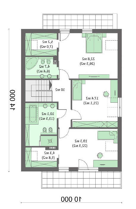
| Общая площадь: | 230.54 м2 | 
| Жилая площадь: | 101.71 м2 | 
| Высота дома: | 8.68 м | 
| Высота потолка: | 2.80 м | 
| Угол наклона кровли: | 37 ° | 
| Площадь крыши: | 228.00 м2 | 
| Кубатура: | 965.00 м3 | 
| Количество спален: | 3 | 
| Количество санузлов: | 3 | 
| Гараж: | Гараж на одно авто | 
| Минимальный размер участка(длина): | 17.00 м | 
| Минимальный размер участка(ширина): | 25.00 м | 
| Площадь застройки: | 212.95 м2 | 
Материалы: | |
| Стены: | газобетонные блоки | 
| Перекрытие: | монолитное перекрытие | 
| Кровля: | фальц | 
| Фундамент: | монолитная лента | 
| Артикул | 4M707 | 
| Количество этажей: | 2 | 
| Общая площадь: | 230.54 м2 | 
| Жилая площадь: | 101.71 м2 | 
| Высота дома: | 8.68 м | 
| Высота потолка: | 2.80 м | 
| Угол наклона кровли: | 37 ° | 
| Площадь крыши: | 228.00 м2 | 
| Кубатура: | 965.00 м3 | 
| Количество спален: | 3 | 
| Количество санузлов: | 3 | 
| Гараж: | Гараж на одно авто | 
| Минимальный размер участка(длина): | 17.00 м | 
| Минимальный размер участка(ширина): | 25.00 м | 
| Площадь застройки: | 212.95 м2 | 
Материалы: | |
| Стены: | газобетонные блоки | 
| Перекрытие: | монолитное перекрытие | 
| Кровля: | фальц | 
| Фундамент: | монолитная лента | 
Приобретая проект дома в компании Dom4M, Вы получаете комплект чертежей - 2 экземпляра, необходимый для проведения строительных работ и беспрепятственного получения разрешения на строительство.
Проект содержит три раздела – Архитектурный, Конструктивный и Инженерный (Водоснабжение, Отопление, Вентиляция, Канализация, Электроснабжение) + Пояснительная записка
1. Архитектурный раздел:
2. Конструктивный раздел:
3. Инженерный раздел:
Водоснабжение и канализация
Отопление, вентиляция
Электротехнические решения:
Проект является типовым и не учитывает конкретных условий строительства
Срок изготовления проекта дома составляет от 3 до 30 рабочих дней.
Объем проектной документации – от 50 до 100 страниц А4 и А3, в зависимости от сложности проекта
Наша команда Архитекторов, Конструкторов и Инженеров – всегда готовы воплотить Вашу мечту в реальность!
Мы можем вносить любые изменения в проект по Вашему пожеланию и адаптировать его с учетом конкретных геолого-топографических и климатических условий, за дополнительную плату.
Всегда рады Вам помочь!